Топливо
Их состав включает в себя водород и углерод, которые при соединении с кислородом выделяют много тепла. Причем такое смешение может происходить предварительно, например, в горелке.
Уголь для кузнечного горна
Однако нужно понимать, что управлять природным газом для таких целей будет почти невозможно, поскольку он состоит из разных углеводородов, которым требуется разное количество кислорода. Поэтому организовать оптимальную подачу воздуха не получится. К тому же в составе природного газа содержится сера, которая отрицательно влияет на свойства металла. Поэтому смесь требует предварительно очистки или может использоваться для обработки неответственных деталей.
Изготовление горна из буржуйки
По сути, эта та же буржуйка, только без колосников. Внешний вид кузнецы может быть в виде куба, параллелепипеда и цилиндра. После уборки колосников, воздух не поступает из пространства снизу, а вдувается через боковой канал, который поддается регулировке. Как результат, печь лучше прогревается. В ней дольше задерживаются газы, что тоже увеличивает жар.
Порядок изготовления следующий:
- Из трубы диаметром до 300 мм, отрезается кольцо, шириной 100 мм. Эта деталь называется воротник.
- Берется лист толщиной 4 мм и из него вырезается круг равный диаметру воротника. Это будет дверца.
- Отрезается кусок трубы для подачи воздуха. Он может быть от 76, до 102 мм.
- В него вставляется заслонка, при помощи ручки, пружины и гайки.
- Из листа 3 мм вырезается полоска шириной 30 мм и длиной равной периметру дверцы.
- Полоска облегает дверцу и обваривается.
- Сбоку, в дверце сверлится отверстие и туда приваривается труба для подачи воздуха.
- При помощи запорного устройства, дверца крепится к воротнику.
- Это узел устанавливает на топку с отступом от дна на 100 мм.
- В задней части, вверху, прорезается отверстие и устанавливается дымоход.
К недостаткам такой печи относится отсутствие зольника. Однако более продолжительное горение приводит к улучшенному сгоранию твердых отходов. Уборку золы можно проводить реже.
На другом топливе
Так работает стародавний угольный горн. Первоначально его топили древесным углем, потом – коксом. То и другое – почти чистый углерод. В принципе горн можно топить и дровами, дав им предварительно прогореть до углей, т.е. до древесного угля; как – посмотрим далее.
Устройство горна много упрощается, если на топливо взять очищенный моногаз, пропан или бутан. Они состоят из углерода и водорода, который тоже отличный восстановитель и, соединяясь с кислородом, дает еще больше тепла. Причем газ можно смешивать с кислородом воздуха заранее, еще в горелке. Как устроены газовые горелки для горна, мы тоже далее разберемся, а пока констатируем факт: газовый горн из кирпича можно собрать на скорую руку, лишь бы горелка была, см. рис. (Как сделать самому газовый горн, также можно посмотреть на видео в конце раздела).

Однако это касается только чистых моногазов промышленного назначения. Бытовой природный газ, во-первых, состоит из смеси насыщенных и ненасыщенных углеводородов, имеющих для полного сгорания разную потребность в кислороде и разное тепловыделение. Т.е., настроить тут оптимальную подачу воздуха для нагрева металла под качественную закалку или цементирование принципиально невозможно.
Во-вторых, в составе природного газа в ничтожных количествах есть сера, кремний, фосфор. Хотя бы в виде искусственно вводимой в бытовой газ для немедленного обнаружения утечки «отдушки» – меркаптана. Если фосфор и кремний при точной дозировке еще могут быть полезны (первый – для поверхностного фосфатирования; второй – для улучшения магнитных свойств), то сера – злейший враг стали, начисто убивающий ее эксплуатационную ценность, причем необратимо, для восстановления нужна полная переплавка.
Поэтому бытовой газ как топливо для горна можно использовать, во-первых, только после очистки от серосодержащих соединений. Простейший, но отнюдь не бесплатный ее способ – пропустить газ из баллона, прежде чем подавать в горелку, через емкость с нафталином. Он до серы охоч не менее, чем углерод до кислорода. Во-вторых, нагревать в газовом горне только не ответственные и не нагружаемые в дальнейшем детали; скажем, декоративные элементы художественных металлоизделий.
Принцип работы установки
Перед тем как приступить к сборке термической установки, нужно понимать принципы работы самодельного горна для ковки металла, чтобы упростить конструкцию печи для домашнего пользования. В основе работы прибора лежит энергетический выход при сжигании смеси углерода и кислорода, процент выделения металла в расплавленном виде. В процессе плавки углерод купирует реакцию окисления металла, постоянный поддув газа в топливо быстро повышает температуру в горне.
Разрабатывая чертеж будущего кузнечного приспособления, особое внимание следует уделить типу энергетического вещества, влияющего на конструкцию очага. По виду топливо для горна бывает:
- газовым (бутан, пропан);
- жидким (солярка, мазут);
- твердым (древесный уголь, кокс);
- смешанным (газово-жидким).
В зависимости от планируемой работы и размера заготовки термическая печь может быть с открытой или закрытой зоной очага. Домашнему мастеру следует помнить, что бытовой газ можно использовать в горне только после предварительной очистки от серы методом «прогонки» через жидкий нафталин. Изделия из прогретого газовой горелкой металла не могут использоваться в качестве нагружаемых деталей.
Основным требованием к обеспечению безопасности мастера является установка мощной принудительной вентиляционной системы, даже если для устройства кузнечного горна используется бытовой паяльный аппарат, работающий на баллонном газе. Прибор позволит заниматься изготовлением декоративных элементов интерьера и экстерьера в собственном гараже.
Переносной
Следующая конструкция – переносной горн из… гусятницы. Конструкция ясна из рис. Футеровка – шамотный мергель в смеси с шамотным песком (молотым боем шамотных кирпичей, есть в продаже). Обжиг футеровки после сушки – по ходу работы.

Возможности горна из гусятницы пошире, чем у 6-кирпичного, т.к. рабочее пространство больше и открыто сверху. Но появляются и существенные недостатки:
- Неразборная конструкция: при прочистке фурмы (см. далее о стационарном горне) нагар падает вниз и засоряет перфорацию воздуховода, даже если ее отверстия ориентированы вбок или вниз. Для чистки приходится ломать футеровку.
- Работает только на коксе или древесном угле, т.к. стола с пространством для выжигания нет.
- Дорогая эксплуатация: расход карбона сравним с таковым угля в настоящих горнах.
- Невысокая рабочая температура, до 900 градусов, т.к. не обожженная толком футеровка при большей трескается.
Какой нужен вентилятор?
Ниже мы перейдем к конструкциям уже вполне функциональным, для которых требуется полноценное дутье. И электричество для вентилятора найдется везде. Но какой нужен вентилятор для горна? Когда-то горны поддували мехами; кому любопытно, как кузнечные мехи устроены, см. рис. справа.
Что касается производительности, то для стационарного горна на коксе вполне хватит 200-250 л/мин. Т.е., мощность мотора вентилятора достаточна от 80-100 Вт.
Существенно важнее то, что нам нужно протолкнуть воздух сквозь довольно плотную массу спекшегося топлива
Поэтому при выборе вентилятора прежде всего нужно обратить внимание на создаваемое им давление при нулевой производительности, т. наз
предельное давление. Смысл этого параметра прост: предельное давление вентилятор создаст, нагоняя воздух в замкнутую полость.
Для горна нужно предельное давление от 220-230 мм. рт. ст., что соответствует примерно 0,3 ати. Осевые вентиляторы (крыльчатки) такое создают только промышленные, типа ВН-2 или его аналогов. Бытовые вытяжные и промышленные охлаждающие по предельному давлению вообще не нормируются и, как правило, нужного не создают.
Кроме того, нагоняют они воздух до предельного давления медленно, за минуты, а при тонких ковочно-кузнечных работах дутье нужно менять за секунды. Ставить ресивер бесполезно: при открывании вентиля воздух в нем расширится по адиабате, что при 0,3 ати даст только пшик.
Итого вывод: для наддува горна нужен центробежный вентилятор-улитка. Спецификацию можно и не смотреть, нужное предельное давление даст любой центробежный вентилятор по самому принципу своего действия. Лучше всего брать улитки от систем радиационной защиты военной техники, у них и производительность высокая. Правда, питание – 12, 24 или 27 В постоянного тока, так что понадобятся трансформатор и выпрямитель соответствующей мощности.
Уменьшать ее ЛАТРом или тиристорным регулятором не следует: мотор будет работать в тяжелом режиме чрезмерного скольжения ротора и ресурс и так подызношенного старика окажется невелик. Лучше всего в фурме сделать широкий воздушный дренаж, как в далее описанном стационарном горне.
САМОДЕЛКИН ДРУГ
Уважаемые посетители сайта «Самоделкин друг« сегодня мы с вами разберем, как сделать кузнечную печь-горн для плавления алюминия из ведра своими руками.. Данная печь довольно проста в изготовлении и для ее создания потребуется минимум материалов, а именно старое и не нужное ведро 10-15 или 20 литров (в зависимости какой мощности вы хотите сделать плавильную печь-горн) Так же обязательно потребуется гипс и песок, из смеси 1/2 будут формироваться стенки горна, смесь закладываем внутрь ведра формируя дно толщиной 3-5 см, затем ставим пуансон (к примеру небольшое пластиковое ведро, чтоб образовать полость в растворе) далее закладываем стенки чтоб не было полостей и воздушных подушек.
В нижней части плавильной печи для алюминия размещаем металлический сгон на 16 или 22 (зависит от объема ведра) через него будет осуществляться надув воздуха к горящим углям. Через ПВХ трубу подключенную к обычному фену будет происходить нагнетание воздуха в камеру сгорания.
Тигель для плавление алюминия по обычаю делают из старого металлического огнетушителя, срезая у него верхнюю часть. тигель должен свободно входить в полость печи, притом незабываем о том что по краям должен размещаться уголь. Температура плавления алюминия составляет 660 с° расплавленный в печи металл заливается в заранее подготовленные металлические формы (УБЕДИТЕСЬ ЧТО ОНИ СУХИЕ!!!) если залить раскаленный метал в сырую форму, то последствия будут плачевными, потому как алюминий разлетится по сторонам! СОБЛЮДАЙТЕ ТЕХНИКУ БЕЗОПАСНОСТИ!
Давайте рассмотрим, как сделать плавильную печь для плавки алюминия из ведра своими руками?
Материалы
- металлическое ведро 10-20 л
- гипс
- песок
- сгон
- ПВХ труба
- фен
- использованный огнетушитель (для изготовления тигеля)
Инструменты
- емкость для приготовления гипсовой смеси
Пошаговая инструкция по созданию плавильной печи из ведра своими руками.
Берем старое и не нужное в хозяйстве ведро, желательно из простого черного металла НЕ ОЦИНКОВАННОЕ! Потому как цинк при нагреве будет выделять пары и окислы, которые вы будете вдыхать работая рядом. Моментального вреда конечно не будет, но в последствии может повлиять на здоровье, так что берите простое ведро из черного металла, не прогадаете.
Затем данное ведро следует заполнить гипсо-песчаной смесью, а лучше использовать специальную кладочную смесь, как пример можете почитать и посмотреть нашу статьюКак сделать горн из консервной банки там как раз мастер брал именно кладочную смесь (фото упаковки представлено)
Так же понадобиться металлический водопроводный сгон, который будет размещен в нижней части и через него будет происходить нагнетание воздуха в камеру сгорания угля. Поток воздуха обеспечивает обычный фен.
Переходник.
ПВХ труба для соединения фена и сгона плавильной печи.
Формируем полость печи при помощи небольшого пластикового ведерка. Сначала выкладывается дно горна толщиной 3-5 см, затем стенки, на все про все у вас будет 15-20 минут пока гипс не начнет застывать. Гипс смешиваем с песком в пропорции 1/2 и доводим до однородной массы.
Даем просохнуть как следует, подключаем фен, засыпаем уголь и разжигаем его, сделать это лучше жидкостью для розжига. Помещаем внутрь тигель (сделанный из использованного огнетушителя) в тигель закладываем алюминиевый лом, можно пивные банки и из под лимонада
Внимание! Убедитесь что в банках нет воды и они сухие, потому как при резком перепаде температур алюминий может выпрыгнуть из печи))
Из полученного алюминия можно отливать разнообразные заготовки, любой формы, здесь все зависит от вашей фантазии, а так же интересов. К примеру некоторые ребята отливают из алюминия заготовки, а потом растачивают на токарном станке шкивы для мини-тракторов и автомобилей. Так же можно отливать всевозможные фигурки, статуэтки, гербы, какарды и тому подобное. OLYMPUS DIGITAL CAMERA
OLYMPUS DIGITAL CAMERA
Для отливки более серьезных деталей для автомобиля понадобиться и горн побольше, но образец у вас есть и вам решать что вы будете отливать, мелкие игрушки или детали для техники
Надеемся наш материал был для Вас полезен, спасибо за внимание
Tweet
9 Поделились
Газовые горелки
И под конец дадим чертежи нескольких горелок для газовых горнов. Для художественной ковки они вполне подойдут, а, что ни говори, из кузнечных работ она самая востребованная. Все эти горелки – инжекционные прямоточные. Куда более эффективные и универсальные вихревые слишком сложны для самостоятельного изготовления.
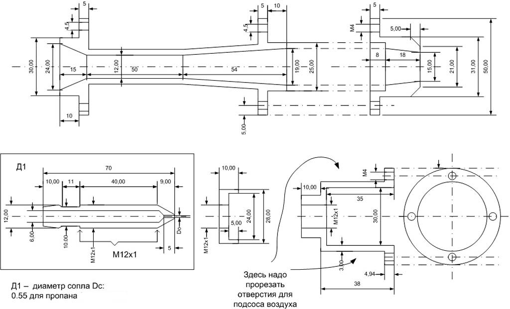
Первая, на рис., самая сложная. Чтобы ее сделать, нужно быть токарем-фрезеровщиком не ниже 5 реального разряда. Зато работает на любом газе (кроме ацетилена, см. ниже!), бензовоздушной смеси и дает очень мощный наддув: может продуть и большой стационарный горн, описанный выше.

чертежи газовых горелок для кузнечного горна
Следующая (см. рис.) попроще и содержит меньше деталей, хотя и здесь нужно точно точить пологие конусы. Дует тоже отлично, но работает только на пропане. Под бутан сопло требуется совсем узкое, да бутан и применяется мало.

Обтачивать вчистую внешнюю поверхность инжектора Д1 и сверлить сопло нужно в один установ. Сопло сверлится твердосплавным сверлом и проходится вчистую разверткой. Это и есть главный недостаток конструкции: требуется мелкий точный инструмент, не везде и не всегда доступный.
Ниже на рис. две горелки попроще. Слева – точеная универсальная под бытовой газ или пропан. Продуть может максимум небольшой передвижной горн, но выточить детали под силу токарю-середняку. Нужно только владеть технологией посадки деталей в горячий натяг. Которая, впрочем, не сложна.

Справа – горелка-самоделка. Большинство деталей, включая ниппель – от велосипеда. Из токарки требуется только обточить в размер самую малую звездочку от велосипедной КПП. Эта горелка всеядна: пропан, бутан, бытовой газовый коктейль, бензовоздух. Но греть ею можно только малые кирпичные замкнутые горны, показанные в начале.
Делаем газовый кузнечный горн своими руками
Для большинства мастерских, работающих с металлом, необходим кузнечный горн. Если вам приходится работать не только с холодной, но и горячей ковкой, то без него никак не обойтись.
Можно все необходимое оборудование просто приобрести, но стоимость кузнечного горна довольно существенная, ценовой диапазон начинается с полсотни тысяч рублей.
А потому в голову любого владельца мастерской приходит рано или поздно мысль сделать кузнечный горн своими руками.

Принцип работы инжекционной горелки.
В традиционной кузне используются горны, работающие либо на древесном, либо каменном угле (коксе), но, помимо этого, есть разновидности, использующие в качестве топлива нефтепродукты или газ.
Мы страна с крупнейшими запасами газа, цена на который довольно низка, поэтому именно газовый горн кузнечный, своими руками сделанный из подручных материалов, с учетом именно ваших предпочтений, станет лучшим вариантом для любого кузнеца.
Сделать кузнечный горн своими руками на газе не только несложно, но даже гораздо проще, чем традиционные угольные варианты.
Эффективность работы на газе очень высокая, а использовать можно не только магистральный природный газ, но и тот, что продается в баллонах.
Преимущества газового горна
Регулировка подачи воздуха.
- Устройство подобного «очага» во многом проще угольных вариантов, хотя бы потому, что в нем не используются колосниковые решетки.
- Регулировать подачу газа, а значит, и температуру горения намного проще, чем в других разновидностях.
- Из-за своего веса такое оборудование можно по праву считать мобильным. Его можно легко транспортировать в нужное место.
- Себестоимость изготовления совсем невелика и не подорвет бюджет мастера.
- Доступность и стоимость газа не сравнимы с другими конкурентами.
Любой мастер, имеющий элементарный опыт работы, сможет построить горн своими руками газовый или угольный, если будет иметь подходящие материалы, инструменты и чертеж будущего оборудования. На рисунке видна схема очень интересного варианта газового горна, но при изготовлении не обязательно его слепо придерживаться, каждый умелец может внести в него свои дополнения или упрощения.
Ведь нет какого-то единого общепринятого стандарта. Если вы выполните основные требования безопасности при монтаже и вас устраивает эффективность горна, то конструктивные особенности совсем не важны.
Меняйте размеры, вид, конструкционные особенности, делайте горн под себя, свои пристрастия, рост, силу.
Даже такое, казалось бы, вечное требование, как основание очага из огнеупорного кирпича, не является неизменной догмой, многие кузнецы обходятся дырявым ведром, обмазанным слоем глины или даже толстым листом жаропрочной стали. Но все же рассмотрим вкратце два основных варианта газового горна.
Открытая модель горна: инструкция
Изготовление кузнечного горна.
Она представляет собой огнеупорное основание в виде поддона, площадки или стола с углублением. На дне выложены кирпичи или иное огнеупорное основание, по бокам стойки из кирпичей или стали, на которых будет крепиться газовая горелка.
Ее необходимо расположить так, чтоб сопло было направлено вниз, в центр огнеупорного поддона. Конструкция примитивная, но эффективная, она даже не нуждается в вытяжном коробе, дым будет рассасываться естественным путем.
Но это если такой очаг установлен на открытом воздухе, под навесом или в хорошо проветриваемом помещении.
Так как форма горна открытая, то нет никаких ограничений на размер обрабатываемой детали, что очень привлекает многих мастеров.
Закрытая модель газового горна
Основное отличие от открытой разновидности в том, что такой горн обличен в корпус, как правило, в виде куба и имеется принудительная вытяжка. Корпус обычно делается из огнеупорных кирпичей с металлической крышкой, переходящей в вытяжку. Размеры закрытых горнов невелики, для домашнего использования он не превышает 80х100см. В передней панели нужно будет вставить дверцу.
В боковой стене предусматривается отверстие для монтирования газовой горелки. Важным условием является установка принудительной вытяжки (с каналом 30х30см), для этого часто используют двигатели от старого пылесоса, печи обогрева автомобиля и т.д.
Газовая горелка
Для корпуса газовой горелки берется труба из «нержавейки» 2 мм толщиной. К нему монтируется труба, состоящая из двух сваренных труб, по одной из них идет газ, по другой — воздух от насоса. Настройка работы горелки требует внимания и навыков.
Как сделать газовый горн своими руками (лучшее видео)
Адвокат Егоров. Это видео про газовый горн из жестяной бочки и сопла кровельной газовой горелки. Несмотря на то, что горн сделан своими руками и ладный и миниатюрный, он вполне пригоден для паковки крупных изделий.
Обратите внимание! После прогрева горна, интенсивность подачи газа можно и нужно убавить, появится тяга, и в горелку засасывать больше воздуха, чем при холодном горне. В результате, почти весь газ сгорать внутри горна. Расход газа уменьшится, а температура в горне только увеличится
Горн выходит на штатный режим в течение 5 минут
Расход газа уменьшится, а температура в горне только увеличится. Горн выходит на штатный режим в течение 5 минут.
Посмотрите товары для изобретателей. Ссылка на магазин.

Вы уже могли видеть горн в видео про изготовление самого крупного ножа – ножа “Якут”. Традиционного ножа северных народов, с широким долом и симметричными спусками. Однако, первым в горне выковал топор. А это, в отличии от томагавка из железнодорожного костыля и напильника, совсем немаленький и полноценно прошивной топор. Топор достоин мороки с изготовлением горна из бочки. А если учесть, что планируется отковать еще десяток различных по виду и по функционалу топоров, а кроме топоров будут и другие изделия, то усилия по изготовлению этого горна точно окупятся.

Горн сделан в точности по той же схеме, что и горн из консервной банки. Но в таком маленьком невозможно разогреть паковку даже для крупного клинка, а топор не выковать и подавно. Кроме того, микро-горн не экономичен. Газ в одноразовых баллонах дорог и быстро заканчивается. Скажете, что топор можно отковать в угольном горне из ведра и вентилятора. Но угольный горн весьма прожорливый и жечь угли в нем надоело. Как показала практика, газовый экономичнее, хотя и менее колоритный.
Видео относительно длинные по причине того, что в горне последовательно были применены две разные фотировки. Забегая вперед, перлит разочаровал. Рад, что не опубликовал это видео, остановившись на фотировке из перлита, хотя отковал в нем ножевой клинок и скобель. Но довольно рекламы этого горна, пора переходить к рассказу о том, как его сделать руками.
Бочонок нашел ржавый и немного помятый, поэтому сперва зашкурил. Вырезал из крышки бочонка отверстие для жерла горна. Надрезал импровизированным циркулем канавку и выбил жестяной круг молотком. Тут же, передумал и решил увеличить диаметр жерла горна при помощи УШМ. Лепестковую насадку лучше для этого не использовать. Выдернул пластиковый насос и зачистил абразивом острые края. Теперь, надо придумать, как подать газовоздушную смесь в горн. Для этого использовал лишнюю в хозяйстве горелку, водопроводные сгоны, фитинг, гайки и уголок, чтобы фитинг поместился в раструби горелки, его пришлось немного обточить. Все штатные стальные сгоны и фитинги, внешне кривые и выглядят неопрятно. А так как опрятные детали и в руках держать приятнее, заодно с откалиброванным фитингом, отшлифовал у них на своем гриндере внешнюю поверхность и торцы. Нет заусенцев – меньше травм. Рукоятка с клапаном кровельной горелки в конструкции горна лишняя, поэтому ее отпилил.

Эксперимент с использованием сгона на 1 и 1/4 дюйма, показал, что воспламенение происходит внутри трубы. А это недопустимо. В противном случае горелка и кожух горна будут нагреваться. Очевидно, скорость газовоздушной смеси должна быть выше. Тогда пламя оторвется от сопла и всё воспламенение внутри горна. Для увеличения скорости потока, достаточно взять трубу тоньше. Эксперимент подтвердил теорию распространения газа в трубах. При использовании трубы на 3/4 дюйма, пламя оторвалось от сопла. Фактически горелка готова. Настало время изготовить ножки для горна. Разметил место для четырех отверстий и просверлил ступенчатым сверлом. В дальнейшем добавлю еще две ножки, но это позже. Крепления ножек после фотировки будут замурованы, поэтому лучше сделать надежно и с первого раза. Итак, крепления ножек будут состоять из болтов и удлиненных гаек. В удлиненную гайку можно ввинтить болт нужной длины и тем самым регулировать высоту горна. А можно горн подвесить на шпильках к потолку, либо поставить на “попа” и опустить в него вертикально распложенный кигель. Вариантов много. Крепления ножек подготовлены, осталось смонтировать систему подачи газа и можно преступить к фотировке. А для этого, просверлил короночным сверлом отверстия под резьбу водопроводного сгона. Чтобы гайки были посимпатичнее, обточил на гриндере, но можно было этого не делать. Хотя с аккуратными деталями, как уже говорил, работать приятнее. Даже жалко, что одна из гаек окажется внутри и покрыта фотировкой.
Продолжение с 5 минуты на видео (в начале статьи)
Горелка Бабингтона своими руками
Достойной альтернативой магазинным горелкам будет изготовление горелки на отработанном масле своими руками. Для начала требуется определиться с типом устройства. Эжекционные схемы сложны для домашнего производства, а испарительные обладают ограниченной сферой применения. Значит, оптимальным вариантом будет устройство Бабингтона, которое изначально предназначалось для работы на дизельном горючем.
Ключевой принцип действия этой горелки в том, что струя сжатого воздуха подается прямо через слой отработки. Также в устройстве не предусмотрены узкие места, способные забиться грязью. Для создания узлов горелки понадобятся такие материалы:
- Топливный узел — бак с наличием ТЭНа мощностью до 1 кВт из нержавеющего металла. Отстойник с трубой, сгон с дюймовой резьбой и переходником 2/1 дюйм для слива лишнего отработанного масла в бак. Медная трубка с диаметром 1 см и толщиной до 0,15 см. Маслонасос с электродвигателем, оборудованный масляным фильтром с крупной сеткой (можно снять с автомобиля, либо мотоцикла).
- Пневматический узел — компрессор с допустимым давлением 2-4 атм., трубка для воздушной струи диаметром 1-1,5 см.
- Камера смешивания топлива с воздухом — пустой металлический шар, либо полусфера с достаточной толщиной для отверстия в 0,3мм (гайка с заглушкой, дверная ручка из латуни и т.д.).
- Сопло, направляющее пламя в нужную сторону. Длинна 20-40 см, внешняя резьба диаметром 2 дюйма.
- Соединительные части (фитинги) и переходные части (переходники) позволяющие собрать всю узлы в единую горелку.
Подготовка модулей горелки к сборке
Роль ключевой детали отводится полусфере, в которой происходит смешивание отработанного масла с кислородом. В ней нужно просверлить отверстие, влияющее на мощность будущей горелки. Для отопительного котла 15 кВт подойдет форсунка с единственным отверстием в 0,2 мм. Большей мощности горелки можно добиться 3-4 отверстиями 0,1-0,25 мм, с обязательным расстоянием в 0,8-1 см (так факелы с каждого отверстия не будут гасить друг друга). Одно отверстие в четверть сантиметра потребляет 2 л отработанного масла за час работы.
Топливный бак выполняется из стойкого к коррозиям металла, как и отстойник для горючего. Последний оборудуется трубкой, по которой отработанное масло поступает обратно в бак. В нижней части отстойника делают заглушку для слива грязного остатка. В бак встраивается ТЭН, оборудованный регулятором, который будет его отключать при 70°С.
Роль корпуса играет крестовина или тройник, к которым монтируется сопло и переходники. Вверху подача масла, сзади подача сжатого воздуха, внизу переходник под слив излишков топлива. Роль переходников играют заглушки с отверстиями для трубок подачи воздуха и масла.
Двигатель насоса для подачи отработки подключается к сети с напряжением 220В. Масло (отработка) из бака поступает по медной трубке, с одной стороны, трижды обмотанной вокруг сопла, а с другой заведенной в бак через масляный фильтр.
Трубку для воздуха крепят к полусфере с просверленной форсункой и устанавливают переходник-заглушку. Сама полусфера располагается таким образом, чтобы горючее из медной топливной трубки полностью покрывало форсунку, а остатки стекали в отстойник. Компрессор воздуховода также подключается к бытовой сети.
Подготовка горючего для горелки
Устройство, работающее на отработанном масле, потребляет любой вид отработки. Моторные масла с большой водностью перед заливкой смешиваются с дизельным топливом (либо чистым маслом). Отработку с умеренным загрязнением можно заливать сразу.
Пищевые масла желательно отстоять перед использованием, затем слить остаток. Мазут и вязкие ГСМ требуется прогреть до 70-80°С. Для большей эффективности в синтетические и минеральные масла при заливке добавляют 10% дизтоплива.
Техника безопасности
- В помещении, где используется устройство, обязательно наличие огнетушителей.
- Если пол и стены помещения изготовлены из горючего материала, их обшивают асбестом или металлом.
- Горючее хранится на расстоянии, недостаточном для воспламенения от работы горелки.
- Маслянистые подтеки вовремя удаляются.
- Работающую горелку нельзя оставлять без надзора.
Горелка Бабингтона — это надежное устройство, обладающее повышенным сроком эксплуатации и призванное принести экономию владельцу.





































